Топка ТЛЗМ-0,5/2,4 в Мурманске

ТЛЗМ-0,5/2,4 топки механического типа являются базовой основой для обустройства твердотопливных котлов повышенной мощности. Оборудование применяется в котельных комнатах с использованием дополнительных механизированных систем, которые необходимы для непрерывной подачи твердого топлива. Системы данного типа считаются неприхотливыми и долговечными.

Цена:
Цена не указана
Количество:
Отправляя свои личные данные через формы на сайте, Вы даёте своё согласие на обработку персональных данных согласно Федеральному закону №152-ФЗ «О персональных данных» от 27.07.2006 г. в редакции от 01.07.2017.

Устройство и принцип работы

Системы ТЛЗМ-0,5/2,4 работают по принципу непрерывной подачи твердого топлива, которое равномерно укладывается на уже горящий слой. В совокупности с цепной ленточной решеткой топка зажигается снизу, а горение передается по всей площади. Таким образом, система поддерживает стабильное и постоянное выделение тепла. Благодаря применению технологии нижнего горения в топке сгорают даже самые мелкие пылевые фракции топлива. Подобные системы легко автоматизируются за счет своей простой конструкции.

Особенности и главные преимущества

Универсальные ТЛЗМ-0,5/2,4 системы обладают высокой эффективностью работы, что немаловажно для крупных промышленных предприятий и коммунальных хозяйств. Следует выделить несколько основных преимуществ оборудования:

  • широкий диапазон регулировки (25-100%);
  • автоматизированный заброс горючего;
  • совместимость с твердотопливными котлами разных марок;
  • легкость обслуживания;
  • минимальные потери тепла.

Топки ТЛЗМ-0,5/2,4 механического типа поддерживают максимальный размер кусков твердого топлива до 50 мм. Надежная конструкция позволяет работать длительное время под высокой температурой.

Размещение и монтаж оборудования

Рамная конструкция топки ТЛЗМ-0,5/2,4 устанавливается на специально подготовленное место, где планируется обустроить котел. При этом основание должно отливаться из бетона. В основу устанавливаются специальные башмаки, которые предназначены для крепления топки. Монтажные процедуры выполняются с учетом всех технических требований. Предварительно проводится оценка работы механизированных систем. Важно обеспечить непрерывность заброса топлива. Во время монтажа проверяется вертикальность и горизонтальность конструкций. После установки специалисты тестируют топку в разных режимах.

Техническое обслуживание и эксплуатация

Топки данного типа ТЛЗМ-0,5/2,4 нуждаются в периодической чистке. Для нормальной работы потребуется удаление шлаковых отложений на стенках и плоскости колосникового полотна. Также проводится тщательный осмотр всех рабочих систем. Дополнительно проверяется вентиляция и вытяжка. Все подвижные системы механизма подачи смазываются специальными составами.

Купить топку ТЛЗМ-0,5/2,4

Приобрести оборудование ТЛЗМ-0,5/2,4 можно через нашу компанию. В наличии имеется большой ассортимент топочных систем и других агрегатов. Для приобретения можно сделать заказ через обратную форму или по контактному номеру. Консультанты предоставят всю необходимую информацию в телефонном режиме.

Характеристики
Серия: ТЛЗМ
Вид топлива: Бурый угольКаменный угольАнтрацит
Диапазон изменения нагрузки: 25-100 %
Коэффициент избытка воздуха за топкой, не более: 1,3-1,5
Потери тепла от химического недожега, не более: 0,75 %
Потери тепла от механического недожега: 10 %
Влажность топлива, не более: 40 %
Зольность топлива, не более: 35 %
Содержание мелочи (0-6 мм), не более: 60 %
Максимальный размер куска: 40 мм
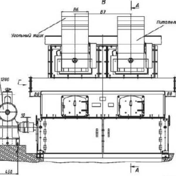
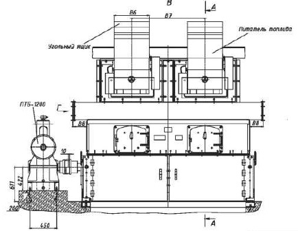
Ширина колосниковой решетки: 500 мм
Длина колосниковой решетки: 2400 мм
Активная площадь колосниковой решетки: 0,9 м²
Ширина забрасывателя: 400 мм
Габаритные размеры: 3800х1100х3175 мм
Масса: 4930 кг
Вид топки: Механическая
Схемы
Комплект поставки

Города поставок

Москва
Пн-Пт 09:00 - 18:00
Сб 09:00 - 17:00
Карачаево-Черкесская Республика
Пн-Пт 09:00 - 18:00
Сб 09:00 - 17:00
Екатеринбург
Пн-Пт 09:00 - 18:00
Сб 09:00 - 17:00

Совершите покупку за 4 шага

Шаг 1
Выберите товары из каталога
Шаг 2
Поместите нужные вам товары в корзины
Шаг 3
Укажите свои контактные данные в форме обратной связи
Шаг 5
Ожидайте звонка от менеджера для оформления покупки

Похожие товары

Топки ТШПМ
Топки ТШПМ
Цена от 0 руб.
Топки ТЧЗМ
Топки ТЧЗМ
Цена от 0 руб.
Топки ТЛПХ
Топки ТЛПХ
Цена от 0 руб.
Вы смотрели эти товары
Топки котлов
ТЛЗМ-0,5/2,4 топки механического типа являются базовой основой для обустройства твердотопливных котлов повышенной мощности. Оборудование применяется в котельных комнатах с использованием дополнительных механизированных систем, которые необходимы для непрерывной подачи твердого топлива. Системы данного типа считаются неприхотливыми и долговечными.
Котельные установки
Котельные установки