Котел КВм-1,0КБ-ТШПМ уголь в Мурманске

Водогрейный, отопительный, твердотопливный, уголь, ТШПМ, 1 МВт (1000 кВт), 70...95 °C, 0,6 МПа (кгс/cм²).

Цена:
420 000 руб.
Количество:
Отправляя свои личные данные через формы на сайте, Вы даёте своё согласие на обработку персональных данных согласно Федеральному закону №152-ФЗ «О персональных данных» от 27.07.2006 г. в редакции от 01.07.2017.

Описание котла

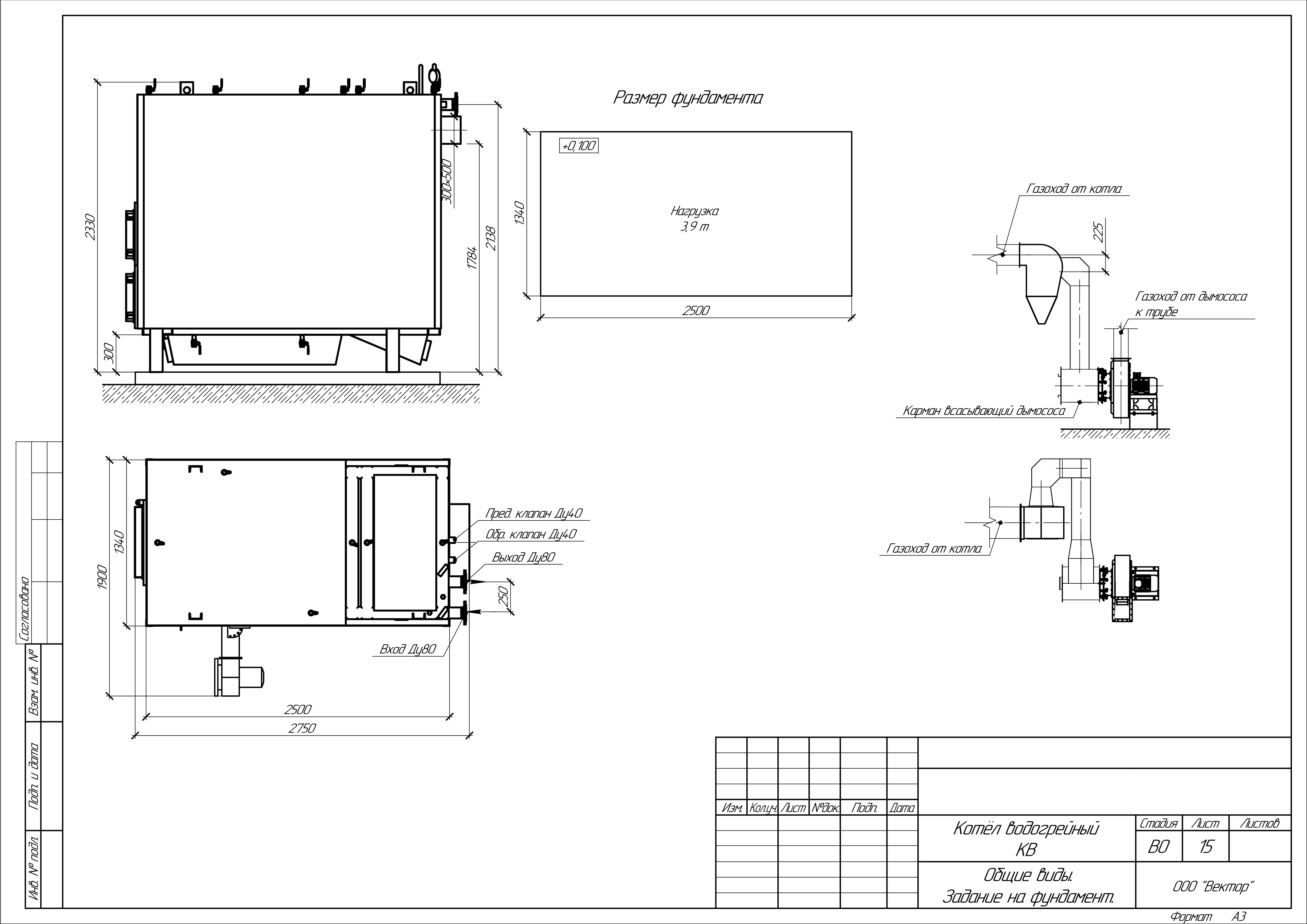
Водогрейный котел КВм-1,0 — агрегат мощностью 1,0 МВт (1000 кВт), применяется в системах централизованного теплоснабжения и горячего водоснабжения жилых, административных и производственных зданий. При получении горячей воды в котлах на угле температура нагрева жидкости достигает 115 °С. Устанавливается и работает в системе из нескольких котлов в котельной 2 МВт и котельной 3 МВт.

Конструкция котла КВм имеет двухблочное горизонтальное строение, состоящее из механической топки ТШПМ (топка с шурующей планкой механизированная) и блока котла с конвективным газоходом, внутри которого циркулирует нагреваемая жидкость. Корпус котла покрыт металлическими жаростойкими листами и краской, которые защищают от коррозии и механических повреждений. Чтобы сократить теплопотери, газоплотные и негазоплотные части котла обшиты теплоизоляцией (плитами ПТЭ и войлоком).

Механическая система топливоподачи и шлакоудаления котла с ТШПМ легко обслуживается одним оператором – кочегаром. В качестве топлива используется каменный или бурый уголь. Расход угля небольшой – 210 кг/ч. Загрузка топлива производится за счет подъемника (транспортера). Для установки твердотопливного котла КВм-1,0 с габаритными размерами по длине, ширине и высоте: 5,1х1,45х2,75 м требуется подготовленное основание. Максимальная отапливаемая площадь помещений — 10000 м². Агрегат компактен, безопасен и прост в эксплуатации.

При должном соблюдении правил использования, а это своевременная очистка топки от шлака, можно забыть о поломках и снижении производительности отопительного котла КВм, что дает срок службы не менее 10 лет.

Более подробную информацию Вы можете получить у наших специалистов. Чтобы купить отопительный водогрейный угольный котел КВм-1,0 с ТШПМ мощностью 1,0 МВт (1000 кВт), достаточно позвонить нам либо оставить заявку и мы обязательно с Вами свяжемся.

Характеристики
Тип: КВм
Вид топлива: Твердотопливный
Топливо: Уголь
Мощность: 0.86 Гкал
Мощность: 1000 кВт
Мощность: 1 МВт
КПД, не менее: 82 %
Вид топки: Механический
Топка: ТШПМ
Класс котла: 1
Отапливаемая площадь: 10000 м²
Отапливаемый объём: 27000 м³
Тяга: Принудительная
Температура воды на выходе, не менее: 70...95 °С
Аэродинамическое сопротивление: 210 Па (мм. вод. ст.)
Расход теплоносителя среды: 34 м³/ч
Расход условного топлива: 150 кг/ч
Расход топлива: 210 кг/ч
Массовый расход уходящих газов: 0.58 кг/с
Низшая теплота сгорания топлива: 5000 кКал/кг
Давление рабочей среды: 0,6 МПа (кгс/cм²)
Гидравлическое сопротивление при перепаде t: 0,08 МПа (кгс/cм²)
Температура воды на входе в котёл, не менее: 60 °C
Температура уходящих газов: 170…250 °C
Радиационная поверхность нагрева: 13.2 м²
Конвективная поверхность нагрева: 32.6 м²
Номинальное разрежение в топке при работе: 20…60 Па
Габаритные размеры (ДxШxВ): 5100х1450х2750 м
Масса котла (без воды): 4400 кг
Расчетный срок службы, не менее: 10 лет
Тип котла: Водогрейный
Серия: КВм

Города поставок

Москва
Пн-Пт 09:00 - 18:00
Сб 09:00 - 17:00
Карачаево-Черкесская Республика
Пн-Пт 09:00 - 18:00
Сб 09:00 - 17:00
Екатеринбург
Пн-Пт 09:00 - 18:00
Сб 09:00 - 17:00

Совершите покупку за 4 шага

Шаг 1
Выберите товары из каталога
Шаг 2
Поместите нужные вам товары в корзины
Шаг 3
Укажите свои контактные данные в форме обратной связи
Шаг 5
Ожидайте звонка от менеджера для оформления покупки

Похожие товары

КВм
Котлы КВм
Цена от 0 руб.
Отопительные котлы
Водогрейный котел КВм-7.0 на ДВО используется для нагрева жидкости до 115 °С, применяемой в системах отопления и горячего водоснабжения. Отопительные приборы КВм-7.0 способны прогревать помещения площадью до 70000 м². Твердотопливный котел оснащается механической топкой на древесных отходах со шнековой подачей. Дополнительно к агрегату приобретаются сопутствующие товары: вентиляторы, дымососы, циклоны, дымовые трубы, бункер топки и другое котельное оборудование.
Отопительные котлы
Водогрейный котел КВм-6.3 на ДВО используется для нагрева жидкости до 115 °С, применяемой в системах отопления и горячего водоснабжения. Отопительные приборы КВм-6.3 способны прогревать помещения площадью до 63000 м². Твердотопливный котел оснащается механической топкой на древесных отходах со шнековой подачей. Дополнительно к агрегату приобретаются сопутствующие товары: вентиляторы, дымососы, циклоны, дымовые трубы, бункер топки и другое котельное оборудование.
Вы смотрели эти товары
Отопительные котлы
Водогрейный, отопительный, твердотопливный, уголь, ТШПМ, 1 МВт (1000 кВт), 70...95 °C, 0,6 МПа (кгс/cм²).
Вентиляторы промышленные
Вентиляторы ВЦ-14-46-3,15-1,5/1500 относятся к разновидности промышленных устройств, которые предназначены для установки в системах вентиляции и кондиционирования. Оборудование комплектуется мощным электрическим двигателем и металлическим корпусом. ВЦ способен обеспечить среднее давление внутри вентиляционной системы.
Вентиляторы промышленные
Вентиляторы ВЦ-14-46-6,3-11,0/750 относятся к разновидности промышленных устройств, которые предназначены для установки в системах вентиляции и кондиционирования. Оборудование комплектуется мощным электрическим двигателем и металлическим корпусом. ВЦ способен обеспечить среднее давление внутри вентиляционной системы.